Tiêu Chuẩn An Toàn Lan Can Đường Cho Người Đi Xe Đạp Đúng Quy Định
Lan can đường là bộ phận góp phần đảm bảo an toàn cho người và các phương tiện lưu thông trên đường. Việc thiết kế, lắp đặt lan can đường cần đáp ứng theo những quy định riêng để đảm bảo được tác dụng cũng như tính thẩm mỹ của lan can. Vì thế, mỗi tuyến đường dành riêng cho các loại phương tiện sẽ cần lắp đặt loại lan can với thông số kỹ thuật khác nhau. Trong bài này, Sài Gòn ATN sẽ chia sẻ với bạn những tiêu chuẩn, quy định lan can đường xe đạp.

Vị trí lắp đặt lan can xe đạp
Lan can xe đạp được dùng cho các cây cầu chuyên dùng, thiết kế riêng cho xe đạp đi và cho các cầu mà ở đó nhận thấy cần thiết phải bảo vệ đặc biệt cho người đi xe đạp.
Kích thước lan can xe đạp
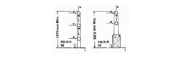
Chiều cao của lan can đường dành cho xe đạp tối thiểu là 1070 mm đo từ bề mặt đường xe đạp lăn bánh. Chiều cao vùng trên và vùng dưới của lan can xe đạp nhỏ nhất là 685 mm. Vùng phía trên và dưới phải lắp đặt thêm thanh ngang lan can. Khoảng hở tịnh giữa các cấu kiện lan can phải đảm bảo một quả cầu đường kính 150 mm không thể lọt qua đối với phần lan can phía dưới và phải thấp hơn 685 mm; Khoảng cách trong phần phía trên phải đảm bảo một quả cầu đường kính 200 mm không thể lọt qua.
Nếu thấy cần thiết, phải bố trí thanh nẹp nhẵn hoặc mềm ốp vào lan can hoặc hàng rào với chiều cao đủ để không phải bạt các mấu lồi ra trong phạm vi chiều cao tay người điều khiển ghi đông xe đạp. Nếu dùng màn chắn, lưới thép hoặc một mặt đặc thì có thể giảm bớt số lượng các thanh ngang lan can.
Hoạt tải thiết kế lan can xe đạp
Trường hợp chiều cao lan can vượt quá 1370 mm tính từ bề mặt xe lăn bánh, các tải trọng thiết kế phải do người thiết kế quy định. Các tải trọng thiết kế đối với chiều cao lan can xe đạp thấp hơn 1370 mm không được nhỏ hơn các tải trọng thiết kế được quy định trong Điều 8.2 (tải trọng) của tiêu chuẩn thiết kế lan can đường người đi bộ. Ngoại trừ với lan can có tổng chiều cao hơn 1370 mm, thiết kế hoạt tải cho cột phải được áp dụng tại điểm 1370 mm trên mặt người đi.
Vị trí tải trọng tác dụng của tải trọng phải theo như minh họa trong hình. Có thể dùng vật liệu bất kỳ nào hoặc tổ hợp nhiều vật liệu quy định tại Điều 5.

Hi vọng những chi sẻ trên đây của Sài Gòn ATN đã giúp bạn hiểu rõ hơn quy định về tiêu chuẩn lan can đường xe đạp. Nếu bạn đang có nhu cầu cần tìm đơn vị thiết kế, thi công lan can đường uy tín, chất lượng với chi phí hợp lý, hãy liên hệ ngay với Công ty Sài Gòn ATN qua số Hotline: 0934 638 458 để được tư vấn thêm. Chúng tôi là đơn vị giàu kinh nghiệm trong lĩnh vực cung cấp dịch vụ thi công các hạng mục an toàn giao thông tại TPHCM cũng như khu vực phía Nam. Hân hạnh được phục vụ quý khách!
>> Xem thêm: Bảng báo giá lan can cầu đường bộ